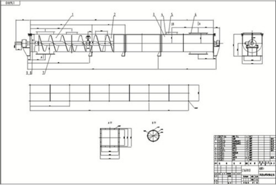
LS螺旋輸送機組成:螺旋輸送機通常由螺旋輸送機本體、進出裝置、驅動裝置三大部分組成。 螺旋輸送機本體由頭節、中間節、尾節三部分組成。一般情況下,出廠總裝時將螺旋輸送機中間節按長度長短依次排列,最長的中間節靠近頭節,相同長度的中間節則挨在一起,如果有特殊要求,則在訂貨時給出排列順序。 在螺旋輸送機頭節內裝有支推軸承承受軸向力,在中間節和尾節內裝有用軸承支承螺旋軸,此外,在螺旋輸送機尾節內還裝有可軸向移動的徑向軸承以補償螺旋軸長度的誤差和適應溫度的變化。
螺旋輸送機螺旋面的形式有實體螺旋(S制法)和帶式螺旋(D制法)兩種。各螺旋軸之間采用法蘭式聯接, 保證了聯接軸的互換性,便于維修。 螺旋輸送機機蓋為瓦片式并用蓋扣夾緊在機殼上,若需改進密封性能,用戶可自行在機蓋與機殼間加防水粗帆布。 螺旋輸送機進、出料裝置有進料口,方型出料口,手推式出料口,齒條式出料口四種,由用戶在使用現場在機體上開口焊接。布置螺旋輸送機進、出料口位置時應注意保證料口至端部的距離,同時避免料口與吊軸承加油杯、機殼聯接法蘭、底座等相碰。
LS型螺旋輸送機分類:
按螺旋輸送機驅動方式分:
C1制法--螺旋輸送機長度小于35m時,單端驅動。
C2制法--螺旋輸送機長度大于35m時,雙端驅動。
按螺旋葉片形式分:
S制法--實體螺旋葉片
D制法--帶式螺旋葉片
J制法--漿葉式螺旋葉片
按螺旋輸送機中間吊軸承種類分:
M1--為滾動吊軸承。采用80000型密封軸承,軸蓋上另有防塵密封結構,常用在不易加油、不加油或油對物料有污染的地方,密封效果好,吊軸承壽命長,輸送物料溫度t≤80℃。
M2--為滑動吊軸承。設有防塵密封裝置,常用有鑄銅瓦,MC耐磨尼龍瓦,還有用于常用在輸送物料溫度比較高(t>80℃)或輸送液狀物料的銅基石墨少油潤滑瓦。
LS螺旋輸送機參數:

LS螺旋輸送機圖紙:

上一篇: 振動輸送機結構
下一篇: 大傾角帶式輸送機參數